Tree House Module

Bussaco National Forest, Portugal., 2020

Las casas del árbol son una fuente de refugio, sueños y aventura que todos experimentamos durante nuestra infancia, sin embargo, la cotidianidad de la vida que cada individuo experimenta, forja que la esencia de estos refugios se transforme en un área limitada que solo cumplan con las necesidades básicas diarias, por este motivo consideramos que es necesario crear espacios que permitan retroalimentar el vínculo entre el hombre y la naturaleza, para que esté a su vez se nutra de nuevas experiencias que fomenten la creatividad.
Planta Baja 1 Planta Alta 1
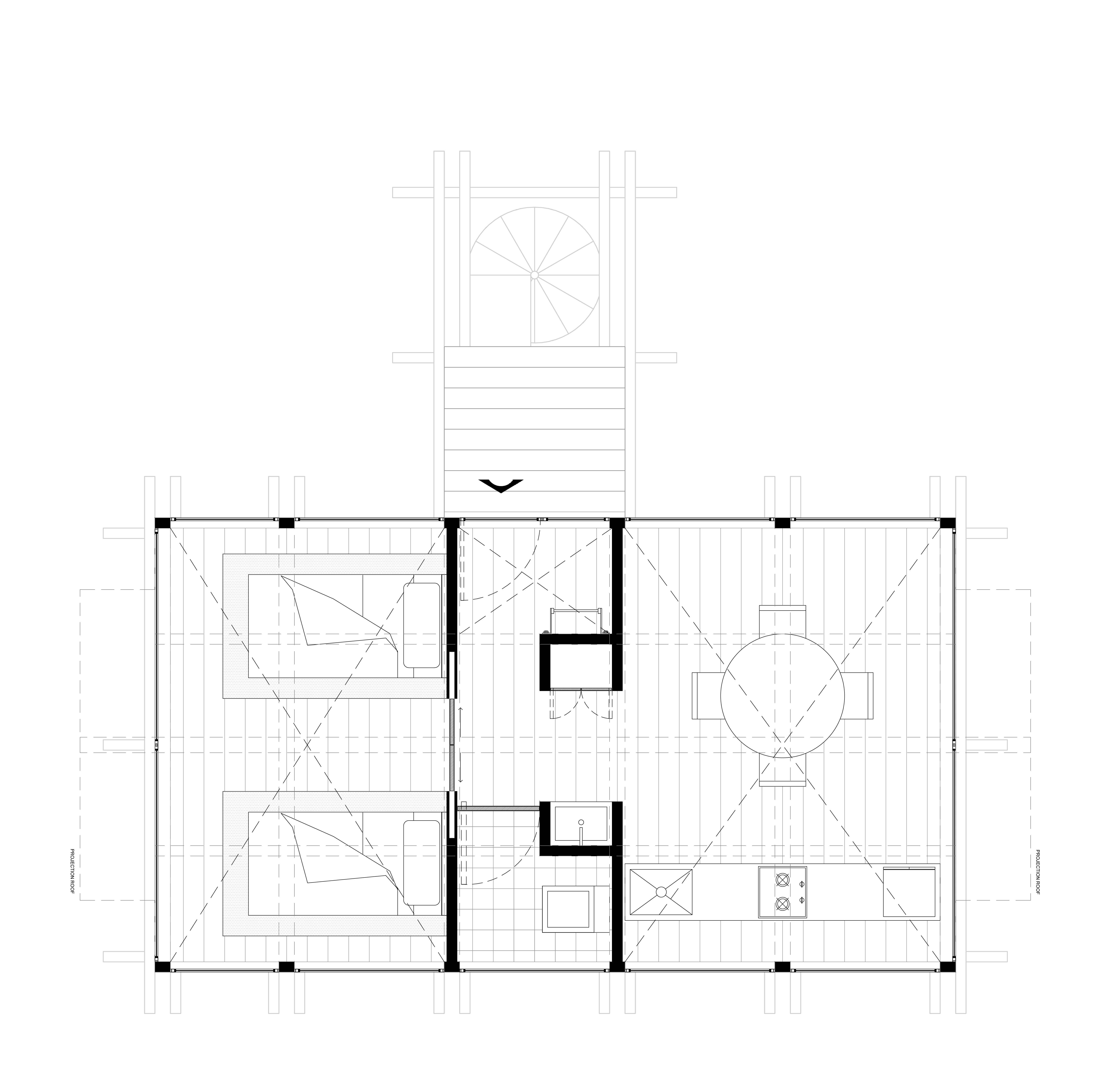
Los prototipos de casa del árbol están pensados para una fácil fabricación y reproducción. Las modulaciones se basan en un sistema de medidas de 0.30m y 0.40m, los materiales utilizados para su fabricación son: perfiles de acero (4”x4”), madera y cristal. Se eligieron estos materiales por su fácil uso en la construcción, el cristal nos permite lo permeable visualmente entre lo interior y el exterior de los prototipos, la madera nos proporciona el ambiente acogedor que conceptualizamos y el acero nos brinda la seguridad y durabilidad de los prototipos.
Planta Baja 2 Planta Alta 2
Los prototipos tienen la versatilidad de adaptarse a cualquier superficie y cualquier clima, gracias a su modulación se pueden acoplar módulos en las paredes necesarias dependiendo de su orientación, debido a la forma triangular del prototipo nos permite crear aleros para el asoleamiento.

Creditos
Carlos Cruz Ay, Salvador Huerta